S_4
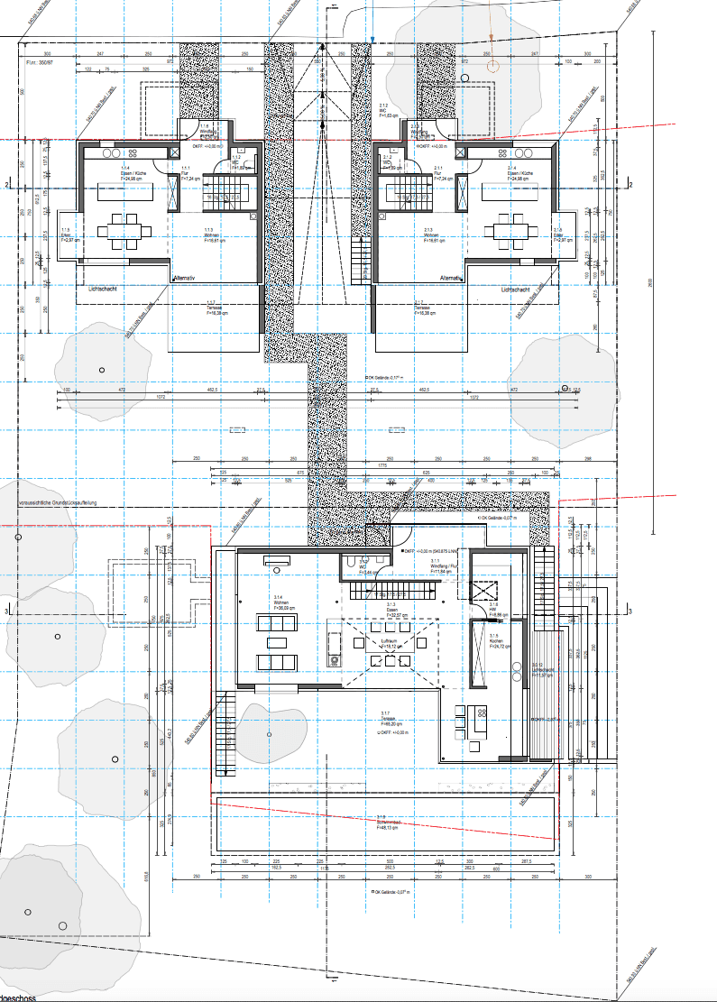
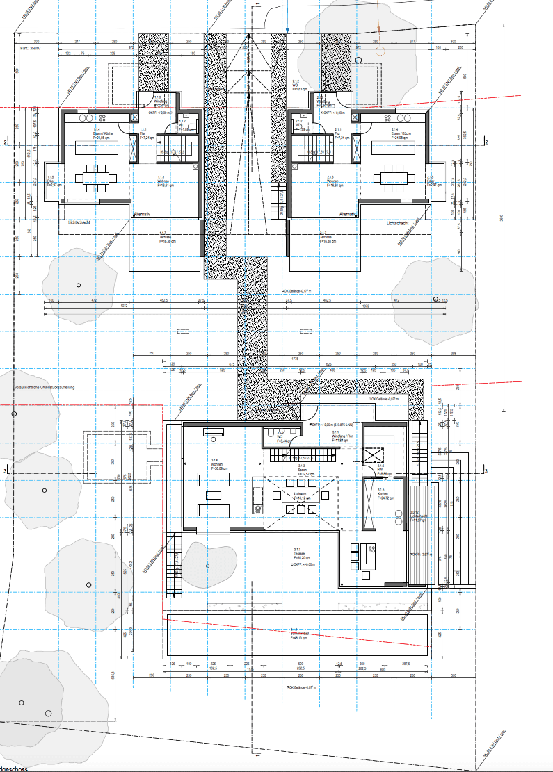
Entwurf und Planung eines Wohnhausensembles in Gräfelfing, bestehend aus einer Einzelvilla und zwei Doppelhaushälften mit gemeinsamer Tiefgarage. Das gebotene Baurecht wird optimal ausgenutzt. Die Wohnungen bieten großzügig geschnittene Grundrisse mit Loggien und Dachterrassen die differenzierte Außenräume bilden. Klare Strukturen der Gebäudekubatur prägen den markanten Entwurf der beiden spiegelsymetrischen Gebäudekörper.
LPH 1-3

Hauptvilla
Entwurf und Planung einer großzügigen Einzelvilla innerhalb des Gebäudeensembles.











